Residence house project with layout detail autocad file
Description
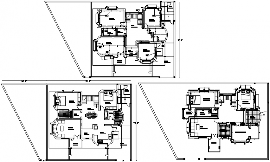
The architecture layout plan of the ground floor plan and first-floor plan all furniture detail, structure detail, compound boundary wall detail, description detail and all dimension detail of residence house project.
Uploaded by:
Eiz
Luna

